Die Erfolge unserer Kunden
Projektbeispiele für Ihre Vision
Unsere Projekte
Klimaneutralität wird Realität
In den letzten Jahren haben wir gemeinsam mit unseren Kunden über 30 Potential- und Machbarkeitsstudien erstellt und damit geholfen, die Weichen in Richtung einer klimagerechten Energieversorgung zu stellen. Ob Wohngebiet oder Gewerbepark, ob Neubau oder Bestand – hier sind die Erfolgsgeschichten unserer Kunden.
Überblick
Alle Projekte auf einen Blick






Offenbach an der Queich
Kommunales Bestandsgebiet mit 6 Gebäuden


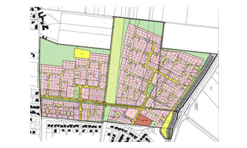
Konstanz
Konversionsquartier mit ca. 7 ha und 500 WE

Friedensau
Hochschulcampus mit 24 Gebäuden

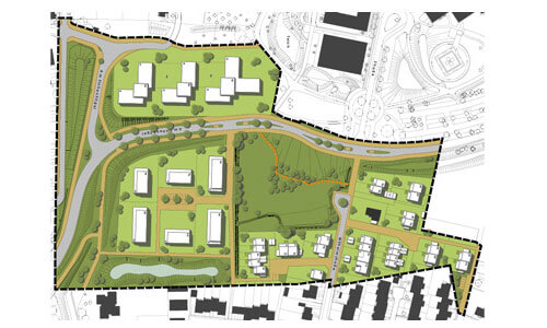
Osnabrück „Am Heger Holz“
Neubaugebiet mit 8,1 ha und 170 WE

Ettlingen
Neubaugebiet mit 1,5 ha und 53 WE

Aulendorf
Neubaugebiet mit 3 ha und ca. 100 WE

Osnabrück „Am Hirtenhaus“
Neubaugebiet mit 7,4 ha und 240 WE

Erkelenz
Neubaugebiet mit 35 ha und ca. 380 WE

Osnabrück „Limberg Park“
Konversions-Gewerbepark mit ca. 70 ha
Unsere Community Wärmewende
Einfach gemeinsam machen
Die Wärmewende gelingt am besten gemeinsam. Deshalb haben wir die Community „Wärmewende“ ins Leben gerufen – einen einzigartigen Raum für Austausch, Praxiswissen und Zusammenarbeit. Hier vernetzen sich bereits über 600 Pioniere, Experten und Praktiker, um gemeinsam die Wärmewende voranzubringen. Alles in einem geschützten Rahmen, der dazu einlädt, Erfahrungen zu teilen und gemeinsam Lösungen zu entwickeln. Treten Sie ein und entdecken Sie, wie viel wir gemeinsam mehr bewegen können.
Kontakt
Neugierig auf mehr?
Sie möchten mehr über uns, unsere Leistungen und Projekte erfahren? Dann schreiben Sie uns oder rufen Sie einfach an – wir helfen Ihnen gerne weiter.
